-
https://www.thearchitectes.com
-
titre
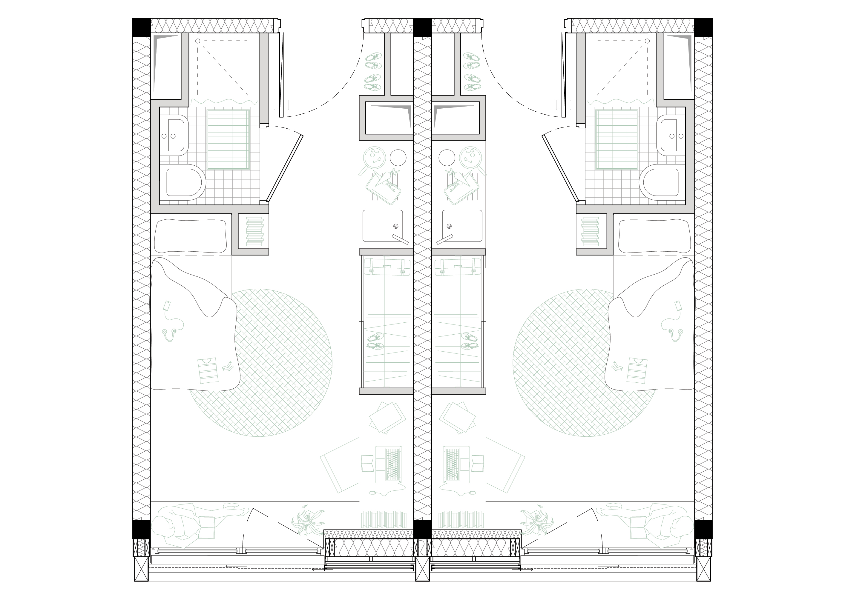
Internat Chinon
statuten coursConstruction du futur internat du lycée Joseph Cugnot à Chinon, pour la Région Centre-Val de Loire.
Pensé dans une logique de coût global, de performance environnementale et de qualité d’usage, le projet s’appuie sur une implantation attentive au site, préservant les arbres existants et structurant un nouveau parvis destiné à l’ensemble des lycéens, intégrant un espace couvert et des stationnements vélos. Le bâtiment adopte une volumétrie compacte et un système constructif éprouvé, associant structure béton et façades en ossature bois avec remplissage en paille.
L’organisation intérieure privilégie la lumière naturelle, le confort thermique et l’habitabilité : un atrium central éclaire et ventile les circulations, tandis que les chambres sont organisées par deux, chacune accueillant trois couchages, réunies autour d’un espace commun. Chaque couchage est conçu comme une alcôve privative, favorisant l’appropriation et l’intimité au sein du collectif.programme construction d'un internat de 38 chambres (102 lits) comprenant un espace bagagerie, un foyer, des salles d'activités et des bureaux, au lycée Joseph Cugnot maître d’ouvrage Région Centre Val-de-Loire mandataire THE architectes équipe Alterea, Oak lieu Chinon surface 1 740 m² coût 4,5 M€ phase études en cours mission complète + mobilier + 1% artistique + BIM certification E3C2 - Pacte bois biosourcé niveau Or
https://www.thearchitectes.com -
titre
Betton
statuten coursConstruction de 52 logements à Betton sur l’îlot C5 de la ZAC de la Plesse, comprenant 38 logements locatifs sociaux et 14 logements en BRS.
Le programme s’organise en trois bâtiments et une halle, afin de créer une urbanité spécifique à l’échelle de l’îlot, de ménager des percées visuelles et de privilégier des logements d’angle.
La halle joue un véritable rôle de centralité entre les bâtiments. Par son échelle, elle entre en dialogue avec le tissu pavillonnaire voisin. Elle constitue un lieu commun pour tous les résidents, accueillant un grand parking à vélos et intégrant la rampe d’accès au sous-sol.
Nous travaillons des volumes simples et familiers, de grandes loggias abritées et un vocabulaire de doubles portes-fenêtres équipées de persiennes.
Le projet repose sur une approche matérielle sobre, avec des briques de terre cuite alvéolaire enduite, de la faïence en rez-de-chaussée, des garde-corps en serrurerie, des charpentes apparentes et des couvertures en ardoise.programme construction de 52 logements (38 lls + 14 brs) maître d’ouvrage Archipel Habitat mandataire THE architectes équipe Alterea, Oak, Arbatt lieu Betton 35 surface 3 187 m² shab - 3 494 m² sdp coût 6,6 M€ phase études en cours mission Mission complète
https://www.thearchitectes.com -
titre
Frémoire
statutconstruitAu Château de la Frémoire, la symétrie du plan existant à tout de suite attiré notre attention. Dès lors nous avons fait le choix d’inscrire le nouvel accès (escalier central et rampes latérales) dans cette symétrie forte, afin de s’inscrire en continuité avec la géométrie de la façade et du plan intérieur. En reprenant les codes de la matérialité minérale du château, ces nouveaux ouvrages se fondent avec le bâtiment existant pour ne faire qu’un.
Devant la qualité existante du lieu et afin de mettre en valeur la scénographie intérieure imaginée par Quand même nos interventions intérieures ont été minimales et respectueuses de l’identité du lieu.
Une démarche de réemploi a été mise en œuvre tout au long du projet. Les matériaux déposés (parquets, escaliers, menuiseries et embrasures) ont été conservés et réutilisés sur place. Certains mobiliers et matériaux non réutilisés ont été mis à disposition d’entreprises travaillant dans l’économie circulaire.programme Diagnostic, réhabilitation - restructuration du rez-de-chaussée et mise en accessibilité du Château de la Frémoire pour la création d'un espace d'accueil, de restauration et de rencontres, un espace boutique et une cuisine professionnelle. maître d’ouvrage Fédération des Vins de Nantes & Le Voyage à Nantes mandataire THE architectes équipe Quand même, Serba, Solab lieu Vertou 44 phase livré en 2024 mission Mission complète + réemploi photographies Juan Cardona (photo intérieur Pauline Théon) - THE-construit-2025-Fremoire-01
- THE-construit-2025-Fremoire-02
- THE-construit-2025-Fremoire-03
- THE-construit-2025-Fremoire-04
- THE-construit-2025-Fremoire-05
- THE-construit-2025-Fremoire-06
- THE-construit-2025-Fremoire-11
- THE-construit-2025-Fremoire-07
- THE-construit-2025-Fremoire-08
- THE-construit-2025-Fremoire-09
https://www.thearchitectes.com -
titre
Pornic
statutprojetÀ Pornic, sur la ZAC de la Ria, nous avons imaginé un îlot balnéaire contemporain conçu pour accueillir une grande diversité de programmes : des logements en accession, des logements en usufruit locatif et une résidence seniors gérée.
Le projet s’ancre dans l’histoire balnéaire de Pornic et propose une architecture sobre, durable et tournée vers l’extérieur. Le long de la rue Paulet, des longères et une villa intermédiaire reprennent l’échelle domestique du pavillonnaire voisin et assurent une transition douce avec le quartier. En cœur d’îlot, des villas collectives offrent des logements d’angle généreusement ouverts sur le paysage et prolongés par de larges terrasses. En pointe nord-est, la résidence seniors adopte une morphologie singulière, inspirée des typologies hôtelières, et propose un lieu de vie collectif animé par un clubhouse partagé.
Le projet développe une forme bâtie compacte et rationnelle, limitant les décrochés pour réduire les surfaces d’enveloppe et les déperditions thermiques. Cette recherche de sobriété constructive contribue à la performance globale, à la fois énergétique, carbone et économique. L’architecture, simple et précise, s’enrichit de détails qui renouent avec l’exotisme familier du balnéaire.programme construction de 172 logements et d'une résidence seniors gérée de 69 appartements maître d’ouvrage AETHICA mandataire THE architectes associé Petit Oeuvre lieu ZAC Ria, Pornic 44 surface 9 174 m² phase concours 2025
https://www.thearchitectes.com -
titre
Bournezeau
statutconstruitCette opération intègre une réhabilitation lourde d’un corps de bâtiment existant de bonne qualité, en position centrale, et la création de deux extensions latérales permettant d’offrir une réorganisation générale de la mairie existante ainsi qu’un agrandissement de sa surface. Notre projet s’est attaché à proposer une relecture du tissu urbain existant en dialoguant avec les épannelages différenciés existants autour de la place de la Mairie tout en s’inscrivant dans un périmètre de protection des monuments historiques du centre-bourg. Notre approche constructive mêle béton bas carbone, façades, charpente et menuiseries extérieures en bois ainsi que plusieurs matériaux en lien avec le contexte local : tuiles de terre cuite et isolation biosourcée issue de filières proches. La Mairie réorganisée offre ainsi un nouveau parvis, une salle du conseil et salle des mariages s’ouvrant sur une cour paysagère en cœur d’ilot et de nouveaux bureaux et espaces de travail.
programme restructuration et extension de la mairie et création d'un parvis maître d’ouvrage mairie de Bournezeau mandataire THE architectes équipe Novam, Solab, Art acoustique, Ecms lieu Bournezeau (85) surface 776 m² coût 2,3 M€ phase livraison 2025 mission complète certification RE 2020 - RT rénovation - Mairie de Bournezeau, THE Architectes
- Mairie de Bournezeau, THE Architectes
- THE-encours-Bournezeau-04
- Mairie de Bournezeau, THE Architectes
- Mairie de Bournezeau, THE Architectes
- Mairie de Bournezeau, THE Architectes
- Mairie de Bournezeau, THE Architectes
- Mairie de Bournezeau, THE Architectes
- Mairie de Bournezeau, THE Architectes
- Mairie de Bournezeau, THE Architectes
- Mairie de Bournezeau, THE Architectes
- Mairie de Bournezeau, THE Architectes
- Mairie de Bournezeau, THE Architectes
- THE-encours-Bournezeau-03
https://www.thearchitectes.com -
titre
Les Lilas
statutprojetLe projet de l’îlot Romainville présente un double intérêt : il s’agit à la fois d’une intervention urbaine visant à étendre le parc Lucie Aubrac et d’un projet immobilier mixte incluant restructuration et construction neuve (18 logements en BRS et un pôle associatif).
La programmation du pôle associatif – café, locaux pour les Restos du Cœur et le Secours populaire – prévue en rez-de-chaussée vient enrichir l’ensemble en lui apportant une véritable dimension sociale et solidaire.
Le site caractérisé par une diversité du bâti et des implantations, avec une présence significative d’espaces plantés, mêle des constructions très faubouriennes et d’autres plus modernes, formant un ensemble pittoresque, varié et harmonieux.
Plutôt que de concevoir un projet uniforme, nous avons cherché à cultiver cette richesse et cette diversité à l’échelle de notre îlot.programme 18 logements BRS et pôle associatif maître d’ouvrage I3F accession mandataire THE architectes lieu Les Lilas (93) coût 3.6 M€ phase concours 2025 certification RE2020 seuil 2028 - Biosourcé Niveau 2
https://www.thearchitectes.com -
titre
îlot BS6a
statutconstruitNotre opération Bs6a répond à l’équation délicate entre l’atteinte d’enjeux environnementaux ambitieux, une insertion respectueuse au sein d’un contexte arboré existant et une programmation de logements de grande qualité, destinés aussi bien à du locatif social qu’à des propriétaires occupants et vendus à « prix maîtrisés ».
L’organisation du projet respecte une implantation libre, s’insérant harmonieusement autour d’un bosquet boisé. L’implantation en quinconce et le travail d’épannelage diversifié permet de ménager des vues et porosités visuelles tout en animant la Skyline du quartier. La forme bâtie en plots permet quant à elle de minimiser les linéaires ainsi que l’emprise au sol de l’opération.
Le projet décline de nombreux principes pour offrir une haute qualité d’usage à ses habitants : un socle paysager et piéton, des paliers et circulations communes éclairés naturellement, des logements doublement ou triplement orientés, des cuisines éclairées en premier jour, de grands espaces extérieurs privatifs disposés aux angles.
Pour atteindre les objectifs environnementaux, l’opération intègre une chaufferie bois en rez-de-chaussée. Le mode constructif est également ambitieux : structure en béton (poteaux-dalles) + façades ossature bois (FOB) industrialisées avec remplissage en ouate de cellulose + doublage complémentaire intérieur en laine de bois + bardages en bois ou en panneaux composites.programme construction de 67 logements (47 libres + 20 sociaux) maître d’ouvrage Nacarat mandataire THE architectes lieu Nantes (44) surface 4 543 m² coût 8.5 M€ phase livraison 2025 mission complète certification niveau E3C2 biosourcé niveau 2 photographies Juan Cardona - THE-construit-2025-bs6a-01
- THE-construit-2025-bs6a-02
- THE-construit-2025-bs6a-03
- THE-construit-2025-bs6a-06
- THE-construit-2025-bs6a-05
- THE-construit-2025-bs6a-09
- THE-construit-2025-bs6a-07
- THE-construit-2025-bs6a-04
- THE-construit-2025-bs6a-08
- THE-construit-2025-bs6a-10
- THE-construit-2025-bs6a-11
- THE-construit-2025-bs6a-12
https://www.thearchitectes.com -
titre
Port de la Trinité-sur-Mer
statutprojetL’opération offre des espaces d’activités plus adaptés à la SNT, la SNSM et l’association Orlabay ; elle propose de nouveaux espaces fonctionnels et accueillants pour l’école de voile et offre un nouvel espace polyvalent pouvant abriter différents types d’évènements.
Le projet entièrement de plain-pied, intègre des accès et cheminements en toiture permettant de relier l’ensemble du projet aux espaces publics en surplomb et offrent aux promeneurs un nouveau belvédère sur l’entrée de la ria.
Le « Bar de l’Etage » existant, situé au centre du site, est conservé et relié au projet via une terrasse haute accessible, et les coursives et passerelles du projet.
Compte tenu de l’environnement marin, nous avons retenu des matériaux et modes constructifs robustes et pérennes : structure béton intérieure, façades ossature bois, métallerie inox, bardage en azobé et plantations locales.programme Construction du pôle nautique du port de la Trinité sur Mer maître d’ouvrage Compagnie des Ports du Morbihan mandataire THE architectes lieu Port de la Trinité-sur-Mer surface 831 m² SU + 580 m² surfaces extérieures coût 2.8 M€ phase concours 2025
https://www.thearchitectes.com -
titre
Ecole de Boussay
statuten coursLe projet s’organise autour de deux volumes principaux distincts, séparés mais reliés par différents espaces de circulations intérieures et extérieures. L’un des volume, en retrait, permet d’aménager un large parvis public côté église ainsi qu’une généreuse venelle piétonne latérale reliée aux liaisons douces traversant le cœur d’ilot. La majeur partie des pierres de construction issues des démolitions programmées seront réutilisées dans les façades coté ville. Sur les façades intérieures, côté cour de l’école, le projet développe de longues façades vitrées, en structure bois et isolées en paille. Elles sont protégées par de longues coursives filantes et s’ouvrent largement sur la cour d’école ainsi que sur le cœur d’ilot.
programme construction d'une école primaire et maternelle et aménagement du parvis maître d’ouvrage ville de Boussay mandataire THE architectes équipe Guillaume Sevin Paysages, Alterea, Art acoustique, Ecms lieu Boussay (44) surface 929 m² su + 1060 m² de cour coût 2,9 M€ phase études en cours mission complète certification RE 2020 (seuil 2025) + Biosourcé niveau 3
https://www.thearchitectes.com -
titre
Pelluau
statuten coursNotre projet offre une nouvelle façade à la place Aqua Vita, plus d’une décennie après son aménagement. Le rez-de-chaussée, destiné au stationnement automobile et aux vélos, est accessible via un grand passage couvert central menant à la nouvelle rue Georges Bykadoroff.
Un travail en plan sur deux rectangles imbriqués permet de créer 6 logements d’angle par étage.
Le projet vise à atteindre le seuil 2025 de la réglementation environnementale, ainsi que le niveau 2 du label bâtiment biosourcé (24 kg/m² de matériaux biosourcés). Il privilégie l’utilisation de matériaux biosourcés à l’intérieur des logements (isolation, fenêtres, portes, revêtements de sol…) pour améliorer l’ambiance et la qualité de l’air intérieur.programme 30 logements maître d’ouvrage CISN mandataire THE architectes lieu ZAC Plateau des Capucins, Angers (49) surface 2 115 m² SP coût 3,7 M€ phase études en cours mission complète certification RE 2025, biosourcé niveau 2
https://www.thearchitectes.com -
titre
Berlioz
statutprojetConcours pour la construction d’une résidence étudiante de 200 chambres sur le site Berlioz à Nantes.
Nous nous sommes attachés à concevoir un projet justement inséré dans son environnement, offrant une lecture claire et fonctionnelle des espaces tout en développant une approche environnementale ambitieuse.
Le bâtiment adopte une forme de tripode, articulant trois ailes en étoile autour d’un atrium de circulation. Ses volumes, proches par leurs proportions de ceux des bâtiments existants voisins, assurent une continuité urbaine tout en offrant une organisation intérieure performante.
Les typologies de chambres, simples et fonctionnelles, sont pensées pour permettre une grande liberté d’usage et d’appropriation.
Le projet réactive le paysage existant par une renaturation généreuse et qualitative, propice au bien-être des futurs usagers.programme construction d’une résidence étudiante de 200 chambres sur le site de Berlioz à Nantes maître d’ouvrage CROUS Nantes - Pays de la Loire mandataire THE architectes associé 2PMA équipe Anthony Hamon, Novam, Pouget consultants, Art acoustique lieu Nantes (44) surface 5 580 m² coût 9,75 M€ HT phase concours restreint 2024 certification RE 2020 seuil 2025 -Biosourcé niveau 3
https://www.thearchitectes.com -
titre
Tours ilot F3
statutprojetNotre proposition pour l’ilot F3 du quartier des Deux-Lions à Tours s’inscrit dans le « faisceau », jardin central du quartier, en y implantant trois volumes compacts en éventail : deux plots accueillant l’accession libre et l’accession sociale et une barrette pliée pour la résidence mobilités. L’ensemble dessine un front bâti discontinu sur l’avenue Marcel-Dassault et la rue Jean-Carmet tout en préservant de larges perméabilités nord-sud et est-ouest à travers le cœur planté.
Le rez-de-chaussée est pensé pour activer l’espace public : la résidence mobilités accueille des usages collectifs ouverts (cafétéria, fitness, terrasse) en lien direct avec l’îlot et le centre commercial. Les halls et porches sont traversants, les locaux vélos généreusement vitrés et trois logements en accession donnent sur le cœur d’îlot avec une grande hauteur libre protégée par un filtre végétal.
L’architecture exprime clairement sa construction, avec une structure poteaux-dalles béton et des soubassements ouverts, des façades en briques enduites pour les bâtiments d’accession et des façades à ossature bois bardées en réemploi pour la résidence mobilités. L’écriture est verticale et domestique côté accession (persiennes), plus horizontale et hôtelière sur la résidence mobilités, composant une architecture familière, comme déjà là, où le réemploi porte une mémoire matérielle.programme 53 logements, résidence mobilités de 150 studios et espaces communs maître d’ouvrage Aethica avec 3F Résidences et 3F Centre-Val-de-Loire mandataire THE architectes lieu Tours, quartier des Deux-Lions surface 6 990 m² phase concours restreint 2024 certification RE 2020 seuil 2025, biosourcé niveau 2, réemploi
https://www.thearchitectes.com -
titre
le Clion-sur-Mer
statutprojetNotre projet vise à définir l’identité du futur quartier de la Corbinière en conciliant ses aspects périurbains et ruraux. L’objectif est de concevoir un habitat à la fois contemporain et traditionnel, qui forme une parenthèse, un espace préservé au sein du paysage périurbain. L’organisation du projet privilégie les mobilités douces, avec un parking en silo pour minimiser l’impact visuel des voitures, tout en proposant de nombreux espaces pour les vélos sous forme de halles communes. Notre lecture du programme et notre analyse du site nous ont conduit à concevoir plusieurs typologies de bâtiments, en relation avec le grand paysage, tout en créant entre eux une urbanité faite de rapports de proximité. Le projet propose 100 % de logements traversants. Chaque logement bénéficie d’une loggia orientée au sud, permettant des usages extérieurs tout en offrant une protection contre la surchauffe en été.
programme 106 logements collectifs (72 en accession, 20 locatifs sociaux et 14 en BRS) et un parking en silo de 114 places maître d’ouvrage Spirit & CISN mandataire THE architectes associé 2PMA lieu Zac de la Corbinière, Pornic (44) surface 6 950 m² coût 12,7 M€ mission concours 2024 certification RE2020 seuil 2025 + Niveau biosourcé 1 - THE-projet-2024-clion-sur-mer-01
- THE-projet-2024-clion-sur-mer-02
- THE-projet-2024-clion-sur-mer-03
- THE-projet-2024-clion-sur-mer-07
- THE-projet-2024-clion-sur-mer-05
- THE-projet-2024-clion-sur-mer-04
- THE-projet-2024-clion-sur-mer-08
- THE-projet-2024-clion-sur-mer-09
- THE-projet-2024-clion-sur-mer-10
- THE-projet-2024-clion-sur-mer-11
- THE-projet-2024-clion-sur-mer-06
https://www.thearchitectes.com -
titre
Le Rheu
statutprojetSitué sur une parcelle à la géométrie complexe, le projet s’organise en deux ailes reliées par un volume central traversant mettant en relation le parvis avec le jardin arboré en cœur d’ilot. Le projet répond aux fortes ambitions environnementales du programme (RE2028 – seuil 2031), en visant un niveau passif, permettant une réduction des équipements intérieurs ainsi qu’une consommation énergétique optimale. Le projet est construit en façades ossature bois avec remplissage en paille hachée, bardage, planchers et charpentes bois.
programme Centre Départemental d’Action Sociale maître d’ouvrage Département d'Ille-et-Vilaine mandataire THE architectes lieu Le Rheu (35) surface 1 645 m² SP coût 3,68 M€ HT phase concours restreint 2024
https://www.thearchitectes.com -
titre
parking en silo Bretonnière
statutprojetNotre proposition pour un parking en silo de 160 places, en structure bois démontable, dans le quartier des Bretonnières à Angers. Le parking fonctionne en spirale continue, éliminant les rampes traditionnelles et offrant une expérience spatiale unique pour les utilisateurs. La conception met l’accent sur le confort des conducteurs et des piétons, tout en minimisant les nuisances sonores pour les riverains. La structure du projet est pensée comme un assemblage démontable de poteaux, de poutres en bois et de planchers en béton. Les façades longitudinales expriment la structure et se présentent comme de grandes colonnades. Les pignons sont revêtus d’un bardage oxydé. Les toitures en pente récupèrent l’eau de pluie tout en prévoyant une installation potentielle de panneaux photovoltaïques et en convoquant l’univers des hangars agricoles.
programme parking en silo de 160 places maître d’ouvrage Alter mandataire THE architectes lieu Zac des Capucins, Angers (49) surface 4 226 m² SDO coût 2,7 M€ HT phase concours 2023 certification RE 2020 seuil 2025
https://www.thearchitectes.com -
titre
Pirmil-les-Isles
statutprojetNotre proposition, non retenue, pour la construction de 86 logements collectifs (locatifs sociaux et en accession libre) sur l’ilot A2A, se compose de deux bâtiments distincts développant chacun une approche architecturale et technique spécifique.
Le bâtiment bas, en R+6+combles, présente une faible épaisseur et est distribué par des coursives. Il offre des typologies traversantes et une ventilation naturelle. Les larges coursives côté rue invitent à l’appropriation et au vivre-ensemble, tandis que du côté du cœur d’îlot, de longs balcons filants sont équipés de celliers privatifs. Les façades de ce bâtiment sont construites en ossature bois avec un remplissage en paille hachée, revêtues d’un bardage en acier thermolaqué.
Le bâtiment haut, en R+11+combles, présente une géométrie découpée permettant de conserver les arbres existants sur le site, de minimiser au maximum l’emprise bâtie et d’agrandir la césure centrale entre les deux bâtiments. Le dessin du plan sur une trame carrée offre des logements doublement ou triplement orientés ainsi que de grandes loggias privatives ouvertes sur le paysage au cœur d’îlot. Les façades de ce volume sont construites en ossature bois avec un remplissage en ouate de cellulose et revêtues de deux types de bardage en acier thermolaqué.
Un projet poussé et affiné qui vise à atteindre une grande qualité d’usage et de confort, tout en respectant les ambitions fixées au cahier des charges : conformité à la réglementation environnementale 2020 (RE 2020) seuil 2025, obtention du label construction biosourcé niveau 3, et respect des seuils carbone imposés pour chaque lot séparé.programme construction de 86 logements maître d’ouvrage Groupe Arc mandataire THE architectes associé Office Zola lieu Rezé (44) phase Concours restreint promoteurs/architectes 2023 - non retenu certification RE 2020 seuil 2025 - Biosourcé niveau 3
https://www.thearchitectes.com -
titre
rue de Nantes
statuten coursNotre projet consiste en la restructuration lourde d’un immeuble existant et la construction de deux bâtiments neufs, en vue d’y créer une résidence de 54 logements, sur 3 parcelles contiguës rue de Nantes dans le XIXème arrondissement de Paris. S’organisant autour de la restructuration d’un bâtiment datant du XIXème siècle, notre projet a pour ambition de créer une unité à l’échelle des 3 parcelles : aussi bien par son
organisation en plan autour d’une cour ouverte sur la rue, que par ses dispositions constructives qui actualisent les éléments de l’architecture faubourienne pour répondre aux enjeux climatiques contemporains.programme restructuration et construction de 54 logements et des locaux commerciaux/activités maître d’ouvrage Immobilière 3F mandataire THE architectes lieu rue de Nantes, Paris surface 2 467 coût 5 600 000 € phase études en cours mission base + diag + BIM certification RE 2020 seuil 2025, NF Habitat HQE Paris, label Effinergie
https://www.thearchitectes.com -
titre
Orléans
statutprojetNotre proposition pour l’ilot 4 de la ZAC Carmes-Madeleine à Orléans, s’attache à proposer une architecture résidentielle tissant un lien avec le paysage bâti existant du centre-ville immédiat.
Ce projet de 81 logements et de locaux d’activités, propose un ilot complet et continu, distribué par des coursives intérieures encadrant un paysage arboré ouvert à tous et constitué de pleine terre.
Afin d’atteindre une haute qualité d’usages et de confort, le volume bâti périphérique est aminci au maximum, proposant une combinaison de logements traversants tous articulés autour d’une trame constructive poteaux-dalles répétitive.
L’expression d’ensemble, répondant par ailleurs aux objectifs environnementaux fixés par l’aménageur, joue sur la dichotomie entre les façades extérieures, minérales et urbaines en pierre naturelle, et les façades intérieures, réalisées en ossature bois et bardées de bois clair.programme construction de 81 logements et de locaux d’activités maître d’ouvrage Vinci Immobilier mandataire THE architectes équipe AIA ingénierie, Guillaume Sevin Paysages lieu îlot 4 Zac Carmes-Madeleine à Orléans phase Concours restreint promoteurs/architectes 2023
https://www.thearchitectes.com -
titre
Porte de Saint-Malo
statuten coursLe projet pour l’ îlot B du quartier de la Porte de Saint-Malo à Rennes, se séquence en trois bâtiments ce qui permet de retrouver l’échelle familière d’une grande villa et d’épouser au mieux la topographie. Les façades convoquent un univers domestique qui s’exprime au travers de matériaux simples et d’éléments architecturaux forts. Tout les logements sont traversants est–ouest et proposent des terrasses sur le cœur d’îlot et des balcons sur la rue.
programme construction de 19 logements collectifs maître d’ouvrage Keredes immobilier mandataire THE architectes équipe Campo, Execome, Sertco & Solab lieu Rennes (35) surface 1280 m² coût 2.5 M€ phase ACT mission complète
https://www.thearchitectes.com -
titre
Chantepie
statutprojetNotre projet de 170 logements et de locaux d’activités pour le maxi lot 4 du Bocage Citadin à Chantepie s’articule autour de la « grange à partager », un espace couvert accueillant des usages collectifs et convoquant le passé agricole du site. Sous la « grange » se trouve le « terre-lieu », une salle commune construite en bauge. Le projet propose une grande diversité de typologies bâties, comment autant de manières d’habiter le jardin de fraîcheur. Une attention particulière est portée au confort d’été en privilégiant des logements traversants avec des espaces extérieurs orientés sud. Le projet fait le choix d’une matérialité simple en enduit de couleur claire. Chaque bâtiment trouve son expression propre par l’emploi de structures bois pour ses espaces extérieurs (balcons et coursives).
programme construction de 170 logements et locaux d'activités à Chantepie maître d’ouvrage Pichet & Aiguillon construction mandataire THE architectes associé 2PMA & Petit Œuvre équipe Oak (paysagiste), Cap Terre (BE environnement) & Karibati (AMO construction biosourcée) lieu Chantepie (35) phase concours restreint promoteurs/architectes 2023
https://www.thearchitectes.com -
titre
médiathèque Piriac-sur-Mer
statuten coursLe projet porté par la commune de Piriac-sur-Mer consiste en la réhabilitation et l’extension de plusieurs bâtiments patrimoniaux, afin de les transformer en médiathèque, maison des associations et maison des jeunes.
Cette opération permettant la création d’un pôle d’équipements structurants pour les Piriacais, est ambitieuse en termes de composition et de mise en valeur du patrimoine de la commune, et reprend la configuration urbaine initiale de la place du Vignoboul.programme restructuration et extension de trois bâtiments patrimoniaux pour la création d'une médiathèque, d'une maison des association et d'une maison des jeunes. maître d’ouvrage Ville de Piriac-sur-Mer mandataire THE architectes lieu Piriac-sur-Mer (44) surface 940 m² phase en cours mission base + diagnostic + mobilier
https://www.thearchitectes.com -
titre
Marly-le-Roi
statutprojetNiché au cœur du parc Jean Witold, à Marly-le-Roi, notre projet d’extension du conservatoire de musique Roger Bourdin s’implante dans le prolongement de la façade nord de la villa existante. Son plan en demi-cercle entre en résonance avec l’architecture de la villa et l’aménagement paysager du parc : le bow-window de la salle Sisley, la terrasse devant la façade sud et les emmarchements symétriques devant l’ancienne entrée en façade ouest. Adossée à la villa, l’extension se déroule dans le jardin, floutant la limite entre intérieur et extérieur, l’architecture et le parc. S’ouvrant sur le paysage, la toiture est aménagée en terrasse et offre des points de vue inédits sur le parc.
programme réhabilitation et extension du conservatoire maître d’ouvrage Ville de Marly-le-Roi mandataire THE architectes équipe Eco+Construire, Espace Libre, Make ingénierie, Wor ingénierie, Art acoustique lieu Marly-le-Roi (78) surface 796 m² coût 1,97 M€ HT phase concours restreint 2022
https://www.thearchitectes.com -
titre
Doulon-Gohards
statutprojetEntre couture avec le tissu pavillonnaire existant et ouverture vers le grand paysage, notre projet pour le fragment nord-est de la ZAC Doulon-Gohards propose un nouveau quartier d’habitat dans un cadre naturel privilégié. Composé de 12 bâtiments, notre projet fait la part belle aux circulations douces grâce à l’implantation un parking silo reconvertible à l’entrée du quartier. Les modes constructifs envisagés privilégient les filières locales et renouvelables (bois et paille).
programme construction d'un nouveau quartier d'habitation et d'un parking silo reconvertible maître d’ouvrage La Nantaise d'Habitations, Coop Logis et Cogedim Atlantique mandataire THE architectes associé Echelle Office et NZI architectes équipe AIA ingénierie et Solab lieu Nantes (44) phase concours restreint 2022
https://www.thearchitectes.com -
titre
Python-Duvernois
statutprojetNotre intervention porte sur le bâtiment A du secteur V de la ceinture verte : long de 245 mètres, il a été conçu par l’architecte Edouard Crevel, et a été construit en pierre massive porteuse, entre 1956 et 1957. Notre projet prévoit la déconstruction partielle du bâtiment.
La partie conservée est rénovée et surélevée, pour accueillir des logements familiaux et des locaux d’activités. Elle est « augmentée » d’une galerie de loggias construites avec les pierres issues de la déconstruction partielle du bâtiment.
Un bâtiment neuf est également implanté à l’angle de la rue Louis Lumière et de la nouvelle rue Henri Duvernois. Construit en structure bois avec une façade en pierre de réemploi, il héberge une crèche et une pépinière d’entreprises.programme rénovation, surélévation et extension d’un immeuble de logements sur le lot 11 de la ZAC Python-Duvernois dans le 20ème arrondissement. maître d’ouvrage RIVP mandataire THE architectes associé Archiplein équipe Egis, Elioth, Praxys lieu Paris (20e) surface 8 874 m² coût 19 M€ HT phase concours restreint 2022, classé 2ème
https://www.thearchitectes.com -
titre
îlot Francas
statutconstruitLe projet se situe au cœur de l’île de Nantes, dans un paysage autrefois industriel, aujourd’hui hétéroclite et changeant. La volumétrie de cet ensemble résidentiel évoque autant les immeubles faubouriens que la silhouette en sheds des anciennes usines ALSTOM transformées progressivement en nouveau quartier de la création de l’ile. En proposant un projet relativement simple, des qualités d’usage supplémentaires ont pu être imaginées, tant à l’intérieur des logements où des mezzanines offrent des espaces en plus pour les résidents, qu’à l’extérieur où la distribution des logements se fait par de généreuses coursives. Enfin, les fenêtres posées au nu extérieur créent un espace habitable dans l’embrasure épaisse des baies.
programme 26 logements en accession et 2 espaces d’activités maître d’ouvrage Lamotte Promotion mandataire THE architectes équipe D’ici Là, Serba, Solab lieu Nantes (44) surface 1 780 m² coût 3,9 M€ phase livraison 2022 mission études complètes, suivi architectural photographies Juan Cardona
https://www.thearchitectes.com -
titre
port de Dahouët
statuten coursNotre projet de capitainerie pour la ville de Pléneuf-Val-André, comprenant les bureaux de gestion du port, un pôle sanitaire et plusieurs salles associatives à l’étage, vient s’implanter en bordure du plan d’eau, le long des enrochements du port de plaisance de Dahouët. Véritable façade portuaire aisément identifiable depuis l’ensemble du plan d’eau, le bâtiment offre également aux utilisateurs et promeneurs plusieurs usages : une coursive filante côté port connectée à une grande loggia centrale, une terrasse panoramique à l’étage et un large parvis arboré côté ville.
programme construction d’une capitainerie et d'un pôle associatif. maître d’ouvrage ville de Pléneuf-Val-André mandataire THE architectes équipe Serba, Execome, Solab lieu port de Dahouët (22) surface 395 m² coût 1,3 M€ phase en cours mission complète certification RE 2020
https://www.thearchitectes.com -
titre
îlot K
statutconstruitL’Îlot K est un projet composite assemblant plusieurs programmes de logements ainsi qu’un parking en silo autour d’un grand cœur d’îlot paysager à proximité immédiate d’une autoroute. Implanté sur tout le linéaire du site à l’Est, le parking silo protège le cœur d’îlot et les logements du bruit de l’autoroute. Ce parking en silo est surmonté des toitures en sheds convoquant l’image des serres maraichères de la région et servant de support à l’installation d’une ferme solaire. Un premier programme de logements, pour le CIF, se développe à l’alignement au sud dans la continuité avec le parking. Un deuxième programme de logements, pour le Crédit Agricole Immobilier, est composé de deux plots hexagonaux à l’ouest créant une grande porosité vers le cœur du quartier.
programme 126 logements en accession et parking en silo de 166 places maître d’ouvrage CIF, Crédit Agricole Immobilier mandataire JBA associé THE équipe Serba, Albdo, Campo, Itac, Linkibat lieu Carquefou (44) surface 12 600 m² coût 10,8 M€ phase livraison 2022 mission complète certification RT 2010, NF Habitat HQE photographies Juan Cardona
https://www.thearchitectes.com -
titre
Bretonnières
statuten coursLe projet pour le lot F du quartier des Bretonnières à Angers, s’inspire de l’architecture agricole et rurale, et plus particulièrement de la typologie de la ferme à cour. Il combine logements collectifs, maisons individuelles et un tiers-lieu organisés autour d’un grand jardin nourricier en cœur d’îlot. Les modes constructifs envisagés privilégient les filières locales et renouvelables (pierre naturelle, chanvre et bois) ainsi que les matériaux issus du réemploi pour le tiers-lieu.
programme construction de 17 logements individuels, 31 logements collectifs et un tiers-lieu maître d’ouvrage Cogedim mandataire THE architectes équipe Boite à Paysages, AIA ingénierie lieu ZAC des Capucins à Angers (49) surface 3 953 m² coût 7,3 M€ phase études en cours mission complète certification seuil carbone 2025 - biosourcé niveau 3
https://www.thearchitectes.com -
titre
îlot central
statutconstruitEn rupture avec les principes d’aménagement « libres » des années 1960-1970 qui ont forgé l’identité du quartier, notre projet cherche à retrouver des alignements sur rues et met l’accent sur la qualité de l’ancrage au sol des bâtiments. Pour renouveler l’image du quartier, l’îlot Central est construit avec une matière noble – le béton teinté blanc – qui évoque les constructions en tuffeau du centre-ville de Nantes. Le projet s’appuie sur des principes simples et rigoureux : immeubles de faible épaisseur, lisibilité de la structure porteuse, dessin régulier et ordonnancé des baies et fenêtres de grandes dimensions.
programme 130 logements en accession libre et sociale maître d’ouvrage CIF, Coop Logis mandataire Urbanmakers associé THE architectes équipe D’ici Là, Egis lieu Saint-Herblain (44) surface 7 950 m² coût 10,2 M€ phase Livraison 2021 mission complète photographies Juan Cardona
https://www.thearchitectes.com -
titre
résidence étudiante ESBAN
statuten coursCette nouvelle résidence étudiante viendra composer avec le paysage urbain existant du quartier du Petit Maroc à Saint Nazaire en proposant un bâtiment signal aisément identifiable. Sa hauteur offrira une qualité singulière aux futurs résidents en leur permettant d’apprécier pleinement la richesse du paysage urbain et maritime de Saint-Nazaire. Chaque logement offrira une flexibilité des usages qui permettra à ses résidents de moduler leurs espaces de vie. Des paliers communs appropriables par les futurs étudiants sont intégrés dans les étages. Ce « seuil commun » anime le couloir et marque ainsi l’entrée commune et progressive à l’ensemble des logements plus privatifs. Il pourra servir d’espace de travail, de lieu de repos ou d’échange à des petits groupes d’étudiants.
programme construction d'une résidence étudiante de 52 logements pour l’École des Beaux-Arts de Nantes Saint- Nazaire maître d’ouvrage Silène mandataire THE architectes associé Myrtille Fakhreddine architecte équipe Serba, Solab lieu Saint-Nazaire surface 2 320 m² phase études en cours mission complète certification Bbio -30%
https://www.thearchitectes.com -
titre
îlot 7
statutconstruitLe projet s’implante sur le boulevard Charles Gautier au sein de la Zac de la baule, recréant une entrée de ville urbaine au nord-ouest de Nantes. Les tissus pavillonnaires bordent de part et d’autre le boulevard, à l’arrière-plan. Le projet tire parti de cette implantation et exprime cette dualité dans sa forme urbaine et dans ses usages. Formée d’une façade Nord lisse sur le boulevard, s’ouvrant vers le cœur d’îlot par de larges failles et mettant en avant les circulations verticales largement vitrées. De l’autre côté, vers le tissu pavillonnaire, la géométrie plus libre en gradins, permet de conserver le patrimoine végétal existant et tient à distance des maisons existantes.
programme construction de 84 logements (accession libre et sociale dont 10 logements participatifs) maître d’ouvrage Icade et GHT-MFLA mandataire THE architectes équipe Cetrac, Guillaume Sevin Paysages, Gamba lieu Saint-Herblain (44) surface 7 950 m² coût 8,7 M€ phase livraison 2025 mission complète certification E2C1
https://www.thearchitectes.com -
titre
Jules Verne
statutconstruitLe projet s’implante dans un contexte hétéroclite où coexistent des constructions de différentes tailles et époques sur un axe majeur de la métropole nantaise, le boulevard Jules Verne. La faille imposée est traitée comme un évènement architectural, une articulation urbaine entre deux temps, deux typologies (la tour et le petit collectif) et deux environnements, le boulevard et le cœur d’îlot boisé. L’utilisation de la brique pour sa grande plasticité, ainsi qu’une trame constructive à la fois rigoureuse et souple, donnent à ce projet ses qualités.
programme 37 logements et 2 locaux d'activité maître d’ouvrage Arc Promotion mandataire THE architectes équipe Serba, Solab, Gotec lieu Nantes (44) surface 2 883 m² coût 3,95 M€ phase livraison 2023 mission complète
https://www.thearchitectes.com -
titre
Vergers du Launay
statuten coursCe projet est constitué de 27 logements collectifs en structure bois/béton, de 4 maisons individuelles en ossature bois et d’un parking commun à l’ensemble de l’opération, dans la ZAC Erdre Porterie – Vergers du Launay à Nantes. Les bâtiments se concentrent en périphérie de la parcelle, afin de conserver au maximum la végétalisation existante, véritable richesse de la parcelle et de créer ainsi un véritable parc en cœur d’ilot.
programme construction de 27 logements collectifs et 4 maisons individuelles en accession aidée. maître d’ouvrage Coop Logis mandataire THE architectes équipe Serba, Solab, De long en large lieu Nantes (44) surface 2 000 m² coût 3,2 M€ phase en cours mission complète
https://www.thearchitectes.com -
titre
rue de Gergovie
statutconstruitSitué à l’angle de deux rues du quartier de Plaisance, ce projet pour un immeuble de dix logements tente de faire la synthèse des deux constructions mitoyennes : il reprend ainsi l’ordonnancement des façades voisines. La trame structurelle du projet, revêtue de briques, s’adresse autant à la ville, par sa durabilité et sa monumentalité, qu’au résident, en incarnant l’échelle domestique de la fenêtre. La grande régularité des ouvertures permet d’en augmenter à la fois le nombre et la dimension.
programme 10 logements locatifs sociaux et un local commercial maître d’ouvrage RIVP mandataire THE équipe Sibat lieu Paris (75) surface 600 m² coût 1,5 M€ phase livraison 2020 mission complète certification H&E Profil A, Plan Climat photographies Maxime Verret - THE-construit-2020-gergovie-03
- THE-construit-2020-gergovie-01
- THE-construit-2020-gergovie-04
- THE-construit-2020-gergovie-05
- THE-construit-2020-gergovie-06
- THE-construit-2020-gergovie-02
- THE-construit-2020-gergovie-08
- THE-construit-2020-gergovie-07
- THE-construit-2020-gergovie-10
- THE-encours-2019-fenetres_sur_rue-06
- THE-encours-2019-fenetres_sur_rue-05
https://www.thearchitectes.com -
titre
maison de l’habitat
statutprojetRéhabilitation, démolition partielle et extension d’un bâtiment existant pour la création de la maison de l’Habitat de Saint Nazaire.
maître d’ouvrage Carène mandataire THE architectes associé Myrtille Fakhreddine architecte lieu Saint-Nazaire (44) surface 796 m² coût 1,5 M€ phase Concours 2021 certification HQE bâtiment durable niveau Excellent, Bbio -35 %
https://www.thearchitectes.com -
titre
canopée
statutconstruitCe projet constitué de 120 logements et de locaux d’activités occupe une place de choix sur l’île de Nantes, à quelques pas du hangar à bananes et de l’extrémité Ouest de l’Ile. Le projet forme un I avec un socle de cinq étages et une émergence au centre de onze étages ceinturés par des balcons filants sur lesquels sont fixés des « volets papillons » en extrémité, forme de clin d’œil aux machines de Nantes. Les logements sont tous équipés d’un espace supplémentaire (loggias, jardins d’hiver, terrasses, balcons) venant en complément de la surface habitable. Afin de permettre une mutabilité ultérieure du bâtiment et de réduire son empreinte carbone, une structure poteaux-dalles est ici mise en œuvre avec des panneaux de remplissage en murs à ossature bois.
Lauréat des Trophées de la Construction 2021, catégorie « logements collectifs ».
Projet exposé lors du Congrès USH 2023 de Lyon au Village des architectes.programme 81 logements locatifs sociaux, 39 logements en accession aidée et 3 locaux d’activités maître d’ouvrage Nantes Métropole Habitat mandataire Sogea Atlantique associé THE + YTAA équipe D’ici Là, AIA, Gamba lieu Nantes (44) surface 9 000 m² coût 13 M€ phase livraison 2020 mission complète certification Equivalent E3C2 photographies Juan Cardona
https://www.thearchitectes.com -
titre
Rouget de Lisle
statutconstruitA l’orée des grands ensembles, dans un paysage très hétérogène en pleine mutation, ce projet tente d’apporter, grâce à la grande régularité de sa façade, une impression de calme. Par l’emploi de matériaux opulents (béton préfabriqué, pierre naturelle, serrurerie et menuiseries laquées), il tente de rompre avec l’image stigmatisante liée au logement social. Assemblant des volumes sur un socle, le projet joue de cette organisation pour créer un grand porche comme un « salon urbain ». Une mezzanine sur ce porche crée une grande salle commune entièrement vitrée pour les résidents.
Photos : Maxime Verretprogramme 64 logements locatifs sociaux et 2 locaux commerciaux maître d’ouvrage OPH de Vitry-sur-Seine mandataire THE équipe Berim, AGI2D lieu Vitry-sur-Seine (94) surface 4 500 m² coût 8,7 M€ phase livraison 2020 mission complète certification H&E Profil A, option économe en charges, RT 2012 –20% photographies Maxime Verret - THE-encours-2019-pierre_angulaire-04
- THE-construit-2020-Rouget-de-Lisle-01
- THE-construit-2020-Rouget-de-Lisle-02
- THE-construit-2020-Rouget-de-Lisle-03
- THE-construit-2020-Rouget-de-Lisle-04
- THE-construit-2020-Rouget-de-Lisle-05
- THE-construit-2020-Rouget-de-Lisle-06
- THE-construit-2020-Rouget-de-Lisle-07
- THE-construit-2020-Rouget-de-Lisle-08
- THE-construit-2020-Rouget-de-Lisle-09
- THE-construit-2020-Rouget-de-Lisle-10
https://www.thearchitectes.com -
titre
Piriac-sur-Mer
statutconstruitCe projet transforme une villa balnéaire de la fin du XIXe siècle en capitainerie. Plusieurs extensions disgracieuses faites au fil du temps avaient défiguré l’édifice d’origine. Le projet de restructuration prévoit donc la démolition de ces agrandissements successifs pour créer, en lieu et place, un « socle habité ». Ce nouveau volume sobre et discret, telle une strate décollée du sol, s’invite subtilement dans le paysage et parait devenir le présentoir de la villa. En plus d’abriter l’ensemble des fonctions nécessaires à la capitainerie, le dessus du socle crée un nouvel espace public surplombant le port de plaisance.
Projet Lauréat du Prix ADC awards 2020 dans la catégorie « Aménagements extérieurs et paysage »programme capitainerie maître d’ouvrage CCI Pays de la Loire mandataire THE équipe Serba, SCE lieu Piriac (44) surface 485 m² coût 0,7 M€ phase livraison 2019 mission complète photographies Philippe Piron - THE-construit-2019-Capitainerie-01
- THE-construit-2019-Capitainerie-02
- THE-construit-2019-Capitainerie-03
- THE-construit-2019-Capitainerie-07
- THE-construit-2019-Capitainerie-06
- THE-construit-2019-Capitainerie-05
- THE-construit-2019-Capitainerie-04
- THE-construit-2019-Capitainerie-08
- THE-construit-2019-Capitainerie-09
- THE-construit-2019-Capitainerie-10
- THE-construit-2019-Capitainerie-12
- THE-construit-2019-Capitainerie-11
https://www.thearchitectes.com -
titre
Puy Heaume
statutprojetNotre projet favorisait une couture en finesse entre la ville existante et le grand paysage en créant une lisière habitée, jouant d’une grande politesse à l’égard du milieu naturel. La diversité du programme nous aidait en ce sens car il induisait la création de 3 bâtiments autonomes explorant des manières plurielles d’«habiter». Nous avons cherché une mise en oeuvre simple et traditionnelle pour une enveloppe robuste et performante thermiquement. La structure poteaux/dalles en béton de la résidence étudiante permettait à terme sa reconversion. Les façades du projet étaient en briques pleines de terre cuite structurelles avec des bandeaux en béton lasuré. Pour chaque programme, nous avions sélectionné une brique d’une teinte différente. L’enveloppe des bâtiments était isolée par l’intérieur avec un mélange de fibres de chanvre, de coton et de lin.
programme 84 logements étudiants, 17 logements sociaux, 11 logements en accession sociale et parking en sous-sol maître d’ouvrage Podeliha mandataire THE équipe Egis, Gamba lieu Saint-Barthélémy-d'Anjou (49) surface 4 150 m² coût 6,3 M€ phase Concours 2020 mission complète certification RT 2012 -10%
https://www.thearchitectes.com -
titre
Port-Maria
statutprojetLe projet se lit comme un événement topographique : une strate minérale se détache du sol, sur et sous laquelle viennent se glisser les différents éléments fonctionnels de la gare. La matérialité du projet (granit et béton préfabriqué recyclé blanc) participe à son inscription dans le paysage portuaire de Port Maria.
programme Reconstruction de la gare maritime de Quiberon à Port-Maria et réaménagement des espaces extérieurs. maître d’ouvrage Sembreizh mandataire THE équipe Egis, D’ici là, Gamba lieu Quiberon (56) surface 1 754 m² (SP), 7 740 m² (ext) coût 3,3 M€ HT phase concours 2019 classé second mission complète certification niveau « Carbone 1 » du Label Energie Carbone et niveau 1 du label « Bâtiment biosourcé »
https://www.thearchitectes.com -
titre
Bottière Pin-Sec
statutprojetNotre projet architectural et urbain redéfinit un nouvel espace public dédié aux piétons et animé par de nombreux commerces au croisement de la rue de la Bottière et du « Fil des Proximités » projeté. S’inscrivant dans une trame urbaine constituée de volumes simples et horizontaux, le projet fait le choix de volumes fragmentés offrant à l’espace public un important ensoleillement naturel, tout en cadrant de nombreuses vues vers le quartier et les cœurs d’îlots plantés. Le projet fait le choix de matériaux nobles et très résistants : béton lasuré (camaïeu de teintes) et éléments métalliques (garde-corps et volets dépliants). Son architecture est celle de l’habité : fenêtres généreuses pouvant servir d’assise (appuis de fenêtre débordants), loggias et circulations verticales éclairées naturellement.
programme 80 logements en accession abordable et 5 locaux commerciaux maître d’ouvrage CIF mandataire THE associé Supersabre équipe Serba, Albdo, Ictec lieu Nantes (44) surface 5 600 m² coût 7,7 M€ phase concours 2018 certification RT2012
https://www.thearchitectes.com -
titre
Normandie-Saumurois
statutconstruitSitué à l’entrée du quartier Villejean, le projet constitue le symbole du renouvellement urbain local de par sa grande hauteur, tel un véritable signal. L’enjeu du projet est d’articuler des programmes multiples (résidence étudiante, pôle santé, parking en silo et maisons individuelles), tout en gardant un ensemble cohérent. Pour ce faire, l’ensemble du socle est recouvert par une résille ondulée en métal perforé. Les maisons sur le toit du parking en silo offrent une grande variété d’espaces extérieurs et particulièrement des serres servant de jardins d’hiver. Les logements étudiants dans la tour sont tous orientés au Sud et bénéficient de fenêtres projetées habitables côté intérieur, le tout exprimant un motif régulier en façade, donnant toute son expression au projet.
programme 150 logements étudiants, locaux associatifs, parking silo de 180 places et 12 maisons individuelles en accession maître d’ouvrage Archipel Habitat mandataire Urbanmakers associé THE équipe Betom, Cap Terre lieu Rennes (35) surface 11 800 m² coût 11,4 M€ phase livré en 2017 mission complète certification H&E Profil A (pour les 12 maisons en accession sociale) photographies Stéphane Chalmeau et Simon Guesdon
https://www.thearchitectes.com -
titre
rue Jean Robert
statutprojetLa parcelle du 18 rue Jean Robert a la particularité de se situer entre deux situations urbaines très contrastées. Côté rue, le paysage est parfaitement homogène, fait de constructions faubouriennes à l’alignement. A l’arrière de la parcelle, nous nous retrouvons face au grand paysage du faisceau ferré de la gare du Nord. Cette dualité se retrouve dans la conception et l’écriture architecturale du projet : chambres et baies verticales sur rue, séjours et baies panoramiques sur le faisceau ferré. Le projet met en œuvre des matériaux choisis pour leurs qualités intrinsèques, leur simplicité de mise-en-œuvre, leur pérennité et leur faible bilan carbone : briques structurelles en terre cuite, enduit minéral et menuiseries bois.
programme 13 logements locatifs sociaux et un local commercial maître d’ouvrage RIVP mandataire THE équipe Sibat lieu Saint-Mandé (94) surface 800 m² coût 2 M€ phase concours 2018
https://www.thearchitectes.com -
titre
Alma
statutprojetLe projet articule un soubassement accueillant un programme tertiaire, une tour de logements collectifs en gradins vers le sud et des maisons individuelles posées sur le socle à l’ouest. L’ensemble des logements collectifs bénéficient d’espaces extérieurs sous forme de loggias. Les maisons, elles, s’organisent entre deux terrasses, l’une donnant sur le cœur d’ilot et l’autre sur rue. Situé à mi-distance entre le centre-ville et le quartier d’EuroRennes, notre projet tisse un lien entre la ville ancienne et la ville nouvelle via l’utilisation d’une ossature en béton teintée dans la masse en premier plan et un parement en aluminium brossé au second plan.
programme bureaux et 35 logements en accession libre maître d’ouvrage Bati-Armor mandataire THE équipe Lemonnier, Albdo, Ouest structures lieu Rennes (35) surface 3 900 m² coût 6 M€ phase concours 2018 certification E3C1
https://www.thearchitectes.com -
titre
EuroNantes 4B
statutprojetAu sein d’un site particulier encaissé entre deux faisceaux ferroviaires et faisant face à une vaste zone naturelle protégée, le projet propose une imbrication forte entre un socle habité et paysager, et des volumes hauts et singuliers. Cette topographie artificielle reprend les formes de pentes initialement présentes et offre un parcours ascensionnel vers le paysage du quartier et de la Loire en arrière-plan. Sur ce cœur paysager recouvrant un parc de stationnement et un centre UCPA, se pose une verticale comprenant près de 103 logements et une courbe comprenant 13 000 m² de bureaux. L’architecture est silencieuse et harmonieuse grâce à des lignes horizontales affirmées. Elle marque par ses coursives une interaction permanente avec le cœur paysager qui traverse le site et les espaces naturels qu’il met en scène.
programme bureaux, 100 logements en accession, parking en silo et équipement multi-sports maître d’ouvrage Altaréa Cogedim mandataire Cobe associé THE, Gaétan Engasser équipe Egis, Elioth, D'ici Là lieu Nantes (44) surface 22 150 m² coût 33,7 M€ phase concours 2018 certification E3C1, BREEAM very good
https://www.thearchitectes.com -
titre
Saint-Mandé
statutconstruitCette opération a la particularité d’être divisée en trois parcelles situées au sein d’un même îlot. L’implantation de chacun des trois bâtiments procède d’un travail d’acupuncture urbaine et illustre des typologies classiques de bâti en milieu urbain dense : la surélévation, l’alignement et l’articulation. Ces trois interventions nous permettent de récréer un épannelage plus cohérent et continu des masses dans l’îlot. Notre projet reprend beaucoup des éléments des architectures déjà présentes sur le site, tentant ainsi d’établir un rapport de connivence avec son environnement.
programme 11 logements locatifs sociaux, 38 logements étudiants et 3 locaux commerciaux maître d’ouvrage Paris Habitat mandataire THE équipe Sibat lieu Saint-Mandé (94) surface 1 500 m² coût 3,6 M€ phase études en cours, livraison 2020 mission complète certification NF Habitat, Effinergie +
https://www.thearchitectes.com -
titre
Lille Fives
statutconstruitNotre projet définit l’entrée du nouveau quartier Boris Vian et occupe les deux angles au croisement de la rue de Lannoy et de la rue de l’Espérance nouvellement créée. Se raccrochant aux héberges voisines sur la rue de Lannoy en R+3, la volumétrie de ce projet se décline à l’intérieur du site en R+2 et en R+3, reprenant les variations verticales des maisons existantes du quartier de Fives. Le projet propose un système de distribution original des logements par paliers extérieurs et coursives donnant sur les cœurs d’ilots et les espaces communs plantés de l’opération.
programme 26 logements locatifs sociaux et 10 logements en accession maître d’ouvrage Groupe Procivis, SIA Habitat mandataire THE associé Gare du Nord équipe Hexa lieu Lille (59) surface 2 400 m² coût 3,3 M€ phase livré en 2016 mission complète certification H&E Profil A - THE-construit-2016-articulation_urbaine-02
- THE-construit-2016-articulation_urbaine-04
- THE-construit-2016-articulation_urbaine-03
- THE-construit-2016-articulation_urbaine-09
- THE-construit-2016-articulation_urbaine-01
- THE-construit-2016-articulation_urbaine-08
- THE-LilleFive-2017-02
- THE-construit-2016-articulation_urbaine-05
- THE-construit-2016-articulation_urbaine-07
- THE-construit-2016-articulation_urbaine-06
- THE-construit-2016-articulation_urbaine-12
- THE-construit-2016-articulation_urbaine-11
- THE-construit-2016-articulation_urbaine-10
https://www.thearchitectes.com -
titre
Coudray
statutprojetImpulsé par la ville de Nantes qui se veut fer de lance en la matière, ce projet est « participatif ». Quarante appartements libres sont conçus « en blanc » et sept à dix logements intermédiaires, en étroite collaboration avec leurs futurs occupants. Voilà qui implique une nouvelle méthode de travail. Alors que l’immeuble sur rue a été entièrement dessiné, des volumes en cœur d’îlot, sont à peine esquissés afin que tout un chacun puisse y projeter ses désirs et ses attentes. Le travail orchestré avec les futurs habitants a également permis de programmer les différents équipements et usages communs de l’opération.
programme 28 logements en accession, 12 logements locatifs sociaux et 10 logements participatifs maître d’ouvrage Ataraxia Promotion, GHT MFLA mandataire THE équipe D’ici Là, Serba, Albdo, ICTEC lieu Nantes (44) surface 3 250 m² coût 5,1 M€ phase projet arrêté mission complète
https://www.thearchitectes.com -
titre
Montereau
statutprojetAu lieu de cacher les automobiles, le projet fait le choix de les mettre en scène. Le parking s’expose dans toute sa simplicité et sa frugalité, comme une structure d’acier bardée de verre, faisant écho aux matériaux mêmes qui constituent une automobile. Le projet fait référence aux garages conçus au début du XXe siècle, époque glorieuse pendant laquelle l’automobile devint le devint l’objet désiré de tous. Il prévoit également la réalisation d’un parking paysager offrant un écrin de verdure pour la salle de spectacles voisine.
programme parking en silo et parking paysager (500 places) maître d’ouvrage Ville de Montereau mandataire THE équipe HDM, Wanja Ledowski Studio lieu Montereau (77) surface 8 730 m² coût 4 M€ phase concours 2016
https://www.thearchitectes.com -
titre
corniche de Sion
statutconstruitCette base nautique est située sur le littoral vendéen au cœur d’un site paysager exceptionnel : au bord de l’océan, entre les dunes vierges et à proximité d’une corniche rocheuse. Afin que cet équipement sportif soit implanté en toute discrétion, la base nautique est enfouie dans une dune existante, sa façade coté océan étant la seule visible depuis l’extérieur. La structure de l’ensemble est en béton armé et l’habillage extérieur de la façade visible reprend la continuité des soutènements existants de la dune réalisés en bois exotique. Des puits de lumière en toiture fournissent la lumière naturelle nécessaire aux espaces intérieurs.
Photos : Stéphane Chalmeauprogramme base nautique maître d’ouvrage Ville de Saint-Hilaire-de-Riez mandataire THE équipe Serba, Atelier Passerelle, Picard-Joré lieu Saint-Hilaire-de-Riez (85) surface 265 m² coût 365 K€ phase livré en 2015 mission complète photographies Stéphane Chalmeau
https://www.thearchitectes.com -
titre
Clichy-la-Garenne
statutprojetLe projet s’intègre dans un contexte très hétérogène, en adoptant une volumétrie simple et lisible : une tour en R+10 avec une façade en pan coupé à l’angle des rues Pierre Bérégovoy et Médéric, en rapport avec les grands immeubles aux alentours ; un plot en R+6 au sud de la parcelle dans le prolongement du bâtiment de la parcelle voisine. Le projet architectural est conçu à deux échelles : celle de la rue et celle du jardin avec une écriture verticale pour la première et une écriture horizontale pour la seconde.
programme 46 logements locatifs sociaux maître d’ouvrage Citallios mandataire THE équipe LGX lieu Clichy-la-Garenne (92) surface 3 100 m² coût 5 M€ phase PRO (projet arrêté en 2015, changement de mairie) mission complète certification H&E Profil A, RT 2012 –20%
https://www.thearchitectes.com -
titre
Venise
statutconstruitLe Pavillon français pour la Biennale de Venise 2012 avait pour thème les grands ensembles de l’agglomération parisienne. Trois maquettes géantes de 6 mètres de haut se trouvaient dans la pièce principale, représentant le territoire allant de l’aéroport de Roissy au Nord à Marne-la-Vallée au Sud. Ces maquettes étaient animées par des projections interactives. Trois autres salles contenant des photographies, des vidéos et des maquettes d’études s’organisaient autour de la pièce centrale. La façade du pavillon à l’architecture classique était habillée par la photographie de détail d’une façade de logements de Clichy-Montfermeil.
programme scénographie du Pavillon français de la XIIIe Biennale internationale d’architecture de Venise maître d’ouvrage Institut Français mandataire THE équipe Building Paris, Hervé Audibert lieu Venise (Italie) surface 400 m² coût 120 K€ phase livré en 2012
https://www.thearchitectes.com -
titre
La Varenne
statutconstruitAfin d’ajouter deux chambres à cette maison familiale à La-Varenne-Saint-Hilaire, un nouveau volume, tout de bois vêtu, est posé sur un des volumes en toiture terrasse existant. La nouvelle toiture disposée dans le même sens que celle de la maison existante, permet d’intégrer parfaitement cet ajout. Construite en ossature bois et isolée en ouate de cellulose, son bardage en lames de bois verticales sombres affirme un caractère contemporain tout en dialoguant avec la volumétrie de la maison d’origine.
programme surélévation d’une maison individuelle maître d’ouvrage privé mandataire THE équipe Ingéstar lieu La-Varenne-Saint-Hilaire (94) surface 35 m² coût 80 K€ phase livré en 2012 mission complète - THE-construit-2012-maison_sur_la_maison-04
- THE-construit-2012-maison_sur_la_maison-01
- THE-construit-2012-maison_sur_la_maison-02
- THE-construit-2012-maison_sur_la_maison-03
- THE-construit-2012-maison_sur_la_maison-05
- THE-construit-Varenne-01
- THE-construit-2012-maison_sur_la_maison-06
- THE-construit-2012-maison_sur_la_maison-07
https://www.thearchitectes.com -
titre
Saint-Ouen
statutconstruitLa particularité de cette maison de ville sur deux niveaux est son plan très allongé (15 mètres x 3 mètres). Pour libérer du volume, les cloisons et combles existants ont été déposés. L’unique volume ainsi créé est modulé et articulé par la mise en place d’une mezzanine en position centrale. Un travail précis sur des habillages et des cloisons ajourées réalisés en lames de chêne massif, permet de créer des filtres visuels délimitant les différents espaces et usages au sein du même volume (cuisine, mezzanine, salon).
programme restructuration d'une maison maître d’ouvrage privé mandataire THE lieu Saint-Ouen (93) surface 130 m² coût 40 K€ phase livré en 2010 mission complète